Diedorf:
Mehrgenerationenhaus in naturnaher Lage – mit Einliegerwohnung, außergewöhnlichen Raumhöhen und flexiblem Grundriss
Objekt-Nr.: 1813

Möblierungsvorschlag Wohnzimmer


Möblierungsvorschlag Wohnzimmer


Möblierungsvorschlag Terrasse



























































Preis:
644.000 €
Wohnfläche ca.:
215 m²
Grundstück ca.:
1.036 m²
Zimmeranzahl:
6
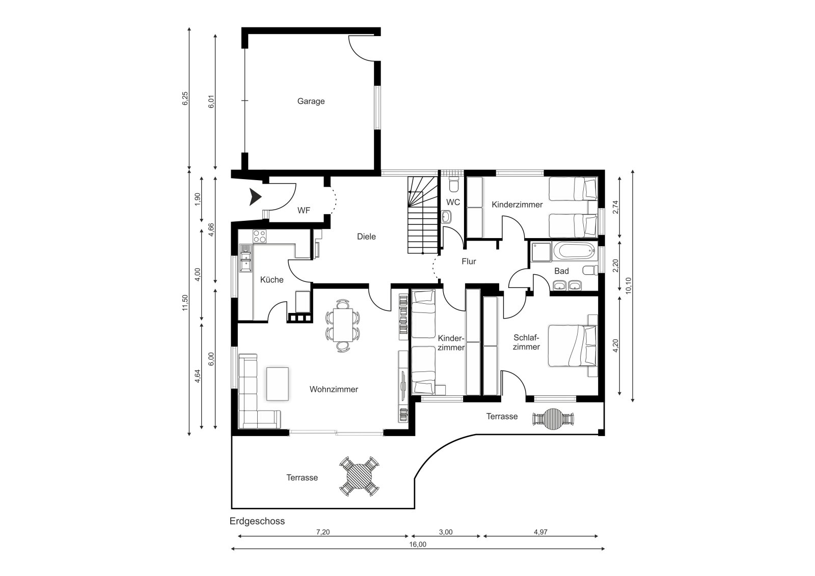
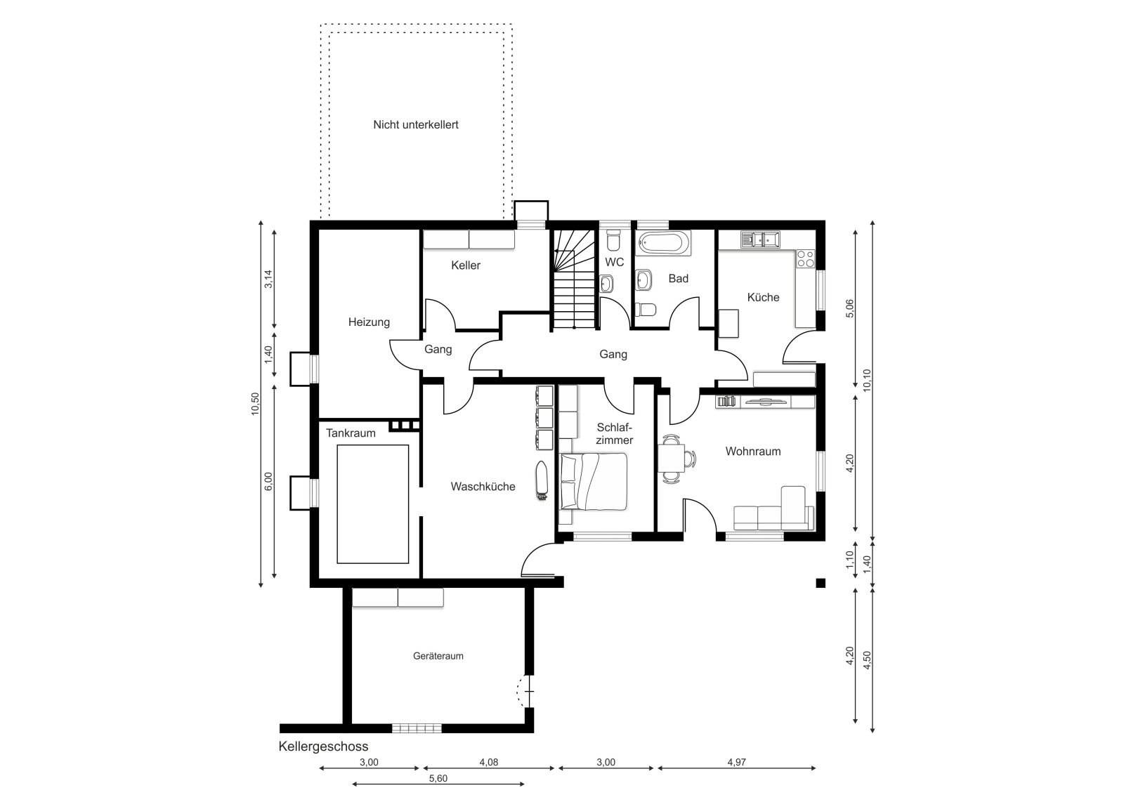
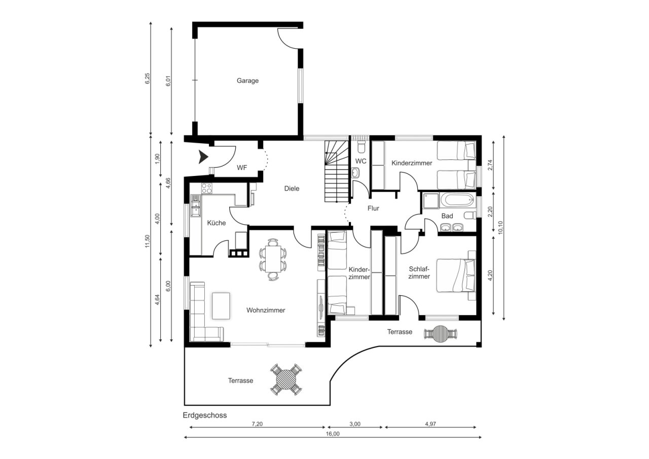
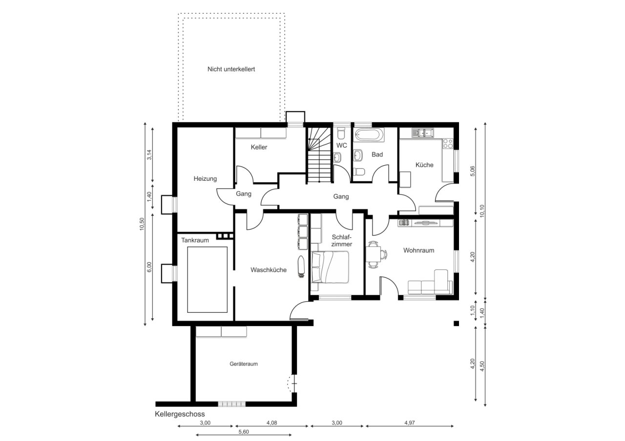
Mehrgenerationenhaus in naturnaher Lage – mit Einliegerwohnung, außergewöhnlichen Raumhöhen und einzigartigem Grundriss
Dieses besondere Mehrgenerationenhaus überzeugt durch seine ruhige, naturverbundene Lage und ein durchdachtes Raumkonzept mit vielfältigen Nutzungsmöglichkeiten. Ob für mehrere Generationen, als Kombination aus Wohnen und Arbeiten oder mit zusätzlicher Vermietungsoption – hier eröffnen sich zahlreiche Perspektiven.
Die Architektur des Hauses nutzt die Hanglage auf besondere Weise: Der Wohnbereich im Obergeschoss öffnet sich zu einer großzügigen Sonnenterrasse, die erhöht über dem eingewachsenen Gartengrundstück liegt und einen freien Blick ins Grüne bietet. So entsteht ein geschützter, lichtdurchfluteter Außenbereich mit hoher Aufenthaltsqualität.…
Im darunterliegenden Erdgeschoss befindet sich die separate Einliegerwohnung mit direktem Zugang zum Garten. Diese Einheit eignet sich ideal für Gäste, Familienangehörige oder zur Vermietung und ermöglicht zugleich eine klare Trennung der Wohnbereiche.
Im Inneren prägen außergewöhnliche Raumhöhen und ein individueller Grundriss das Wohngefühl. Großzügige, helle Räume und fließende Übergänge schaffen eine offene Atmosphäre und unterstreichen den besonderen Charakter der Immobilie.
Das weitläufige, eingewachsene Grundstück bietet viel Privatsphäre und fügt sich harmonisch in die natürliche Umgebung ein – ein idealer Rückzugsort mit vielseitigen Nutzungsmöglichkeiten im Freien.
Highlights auf einen Blick:
- Mehrgenerationenhaus mit flexiblen Nutzungskonzepten
- Einliegerwohnung mit separatem Zugang und Gartenzugang
- Hanglage mit erhöhter Sonnenterrasse im Obergeschoss
- Großes, eingewachsenes Gartengrundstück
- Außergewöhnliche Raumhöhen und individueller Grundriss
- Ruhige, naturnahe Wohnlage
Haustyp: Mehrfamilienhaus
Etagenanzahl: 2
Kubatur: 1.131 m³
Provisionspflichtig: ja
Provision: 2 % vom Kaufpreis je von Käufer und Verkäufer
Bad: Dusche, Wanne
Anzahl Schlafzimmer: 4
Anzahl Badezimmer: 2
Terrasse: 2
Loggia: 1
Einliegerwohnung: ja
Gäste-WC: ja
Dachboden: ja
Kamin: ja
Keller: voll unterkellert
Anzahl der Parkflächen: 1 x Garage
Ausblick: Fernblick
Qualität der Ausstattung: normal
Baujahr: 1976
Verfügbar ab: sofort
Bodenbelag: Beton, Fliesen, Parkett, Teppichboden
Zustand: renovierungsbedürftig
Energieklasse: G
Heizung: Zentralheizung
Befeuerungsart: Gas
Energieausweistyp: Bedarfsausweis - gültig vom 27.09.2024 bis 27.09.2034
Energieeffizienz-Klasse: G
Baujahr laut Energieausweis: 1976
Bei Abschluss eines Kaufvertrages wird eine Vermittlungsprovision in Höhe von 2 % inklusive 19% Mehrwertsteuer auf den Kaufpreis je zahlbar vom Käufer und Verkäufer fällig.
Die bereitgestellten Informationen basieren auf den Angaben des Verkäufers oder der Verkäuferin. Wir übernehmen keine Garantie oder Haftung für die Richtigkeit und Vollständigkeit dieser Angaben. Ein Zwischenverkauf sowie Irrtümer bleiben vorbehalten.
Finanzierung: Unsere Erfahrung hat bewiesen, dass ein Vergleich sich auszahlt!
Wir vermitteln Ihnen gerne den Kontakt zu versierten, unabhängigen Finanzierungsspezialisten.
Aktuell sind insbesondere langfristige Zinsbindungen zu attraktiven Konditionen ein entscheidender Faktor für Ihre Finanzierung.
Fordern Sie ein unverbindliches Angebot an!
Widerrufsbelehrung
Verbraucher haben das folgende gesetzliche Widerrufsrecht:
Sie können Ihre Vertragserklärung innerhalb von 14 Tagen ohne Angabe von Gründen in Textform (z. B. Brief, E-Mail) widerrufen. Die Frist beginnt nach Erhalt dieser Belehrung in Textform, jedoch nicht vor Vertragsschluss und auch nicht vor Erfüllung unserer Informationspflichten gemäß Artikel 246 § 2 in Verbindung mit § 1 Absatz 1 und 2 EGBGB sowie unserer Pflichten gemäß § 312e Abs. 1 Satz 1 BGB in Verbindung mit Artikel 246 § 3 EGBGB. Zur Wahrung der Widerrufsfrist genügt die rechtzeitige Absendung des Widerrufs.
Der Widerruf ist zu richten an:
Feldmayer Immobilien und Verwaltung GmbH & Co. KG
Ulrichsplatz 9
86150 Augsburg
Telefon: 0821 508440-52
E-Mail: info@feldmayer-immobilien.de
Sie können dafür das beigefügte Muster-Widerrufsformular verwenden, das jedoch nicht vorgeschrieben ist.
Widerrufsfolgen:
Im Falle eines wirksamen Widerrufs sind die beiderseits empfangenen Leistungen zurückzugewähren und ggf. gezogene Nutzungen (z. B. Zinsen) herauszugeben. Können Sie uns die empfangene Leistung ganz oder teilweise nicht oder nur in verschlechtertem Zustand zurückgewähren, müssen Sie uns insoweit ggf. Wertersatz leisten. Dies kann dazu führen, dass Sie die vertraglichen Zahlungsverpflichtungen für den Zeitraum bis zum Widerruf gleichwohl erfüllen müssen. Verpflichtungen zur Erstattung von Zahlungen müssen innerhalb von 30 Tagen erfüllt werden. Die Frist beginnt für Sie mit der Absendung Ihrer Widerrufserklärung, für uns mit deren Empfang.
Besondere Hinweise:
Ihr Widerrufsrecht erlischt vorzeitig, wenn der Vertrag von beiden Seiten auf Ihren ausdrücklichen Wunsch vollständig erfüllt ist, bevor Sie Ihr Widerrufsrecht ausgeübt
haben.
Musterschreiben Widerrufserklärung:
An Feldmayer Immobilien und Verwaltung GmbH & Co. KG, Ulrichsplatz 9, 86150 Augsburg, Email: info@feldmayer-immobilien.de
Hiermit widerrufe(n) ich/wir (*) den von mir/uns (*) abgeschlossenen Vertrag über den Kauf der folgenden Waren (*)/ die Erbringung der folgenden Dienstleistung (*).
- Bestellt am (*) erhalten am (*)
- Name des/der Verbraucher(s)
- Anschrift des Verbraucher(s)
- Unterschrift des/der Verbraucher(s) (nur bei Mitteilung auf Papier)
- Datum
(*) Unzutreffendes streichen.
Das könnte Ihnen auch gefallen
Feldmayer Immobilien und Verwaltung GmbH & Co. KG
Team
Ulrichsplatz 9
86150 Augsburg
Telefon: +49 821 50844052
86420 Diedorf
Augsburg
Bayern





























































